Voir le plan du bateau Voir les photos (+6)

Location bateau à Waren · Woma — Ds13 Deluxe (2022)

Sans Skipper
Professionnel
Müritz Marina
Péniche de Marc
6 personnes
 · 3 cabines
 · 6 couchages
 · 1 salle de bain
Sans Skipper
Vous serez le chef de bord, aucun permis n'est nécessaire.
Annulation gratuite
Obtenez un remboursement complet si vous annulez au moins 24 heures avant le début de votre réservation (hors frais de service et commission).

Description de la péniche de Marc

Traduire en Français

Woma - Ds13 Deluxe | 3 Cabines

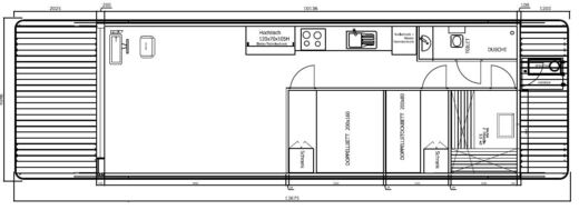
Vous entrez dans votre bateau via la grande terrasse au rez-de-chaussée. Sur la terrasse, vous pourrez vous asseoir confortablement dans un fauteuil confortable et contempler l'eau pendant que l'un de vous actionne le gouvernail ou manœuvre en douceur avec le joystick. Le salon avec la cuisine ouverte s'ouvre depuis la terrasse par des portes coulissantes du sol au plafond. Même sur les côtés, la vue sur la nature est large, ouverte et tranquille - à moins de fermer les stores de protection solaire qui se trouvent partout. Vous pouvez également garantir un courant d'air sans gêner les visiteurs : toutes les fenêtres sont équipées de moustiquaires. En plus du chauffage, la cheminée offre un confort lors des journées plus froides pendant que vous profitez de la vue sur la nature depuis le canapé. Si nécessaire, vous pouvez transformer le canapé en un grand lit pour deux personnes le soir. La table à manger est suffisamment grande pour prendre un repas détendu avec tout le monde à bord ou pour jouer à des jeux de société le soir. Et la climatisation vous garde au frais à l’intérieur lorsqu’il fait trop chaud dehors. Sur le chemin de l'arrière, vous ignorez la cuisine, la cuisinière à gaz 4 feux, le four, le lave-vaisselle et le réfrigérateur gaz/électrique - non sans remarquer que la cuisine est vraiment à part entière, avec suffisamment d'espace de travail et de rangements. et toutes les commodités auxquelles vous pouvez vous attendre. Attenant à la cuisine, le couloir se prolonge vers l'arrière, où vous pourrez ouvrir les portes des deux chambres à droite et la salle de bain vous attend à gauche. Vos chambres sont clairement plus un hôtel qu’une auberge. Dans l'une, vous trouverez un lit double avec un matelas confortable sur toute la longueur et des oreillers et couvertures moelleux, dans l'autre, deux lits superposés sur toute la longueur et la largeur vous invitent à vous détendre. Chaque lit a sa lampe de lecture avec prise USB (même si vous oublierez probablement votre téléphone portable à cause de toute la beauté qui vous entoure). C'est également un bon endroit pour se retirer lorsque vous avez besoin de calme et de tranquillité. La salle de bain a également un caractère hôtelier avec la grande douche, le lavabo intégré et les toilettes complètes. Les surfaces de haute qualité vous permettent de ne pas perdre trop de temps à nettoyer pendant les vacances et les couleurs harmonieuses transforment votre salle de bains en votre petit espace bien-être. Et tant qu'à y être : le petit sauna rend l'expérience de bien-être parfaite, mais pour des raisons d'organisation, son utilisation ne peut être garantie que pendant la saison froide (couchette d'hiver) (et dans d'autres ports seulement après consultation/possibilité - à condition qu'il y ait un (connexion électrique suffisante). Mais la plupart du temps, vous serez probablement dehors. Vous pouvez accéder à l'immense terrasse sur le toit (48 m²) via les escaliers sécurisés à l'arrière, où vous pourrez profiter d'une vue sublime sur ce qui se passe autour de vous sur des chaises longues ou des meubles de salon sous le auvent. Peut-être avec un cocktail à la main et une délicieuse collation sur la table. Les aides techniques permettent même aux capitaines inexpérimentés de naviguer sur ce bateau sans effort. Avec les propulseurs d'étrave et de poupe, la caméra de recul et l'indicateur de position du gouvernail, vous pouvez facilement faire tourner le bateau sur place d'un simple mouvement du doigt sur le joystick ou conduire avec précision dans le parking du port. Le moteur Honda de 50 CV, efficace, silencieux et pourtant puissant, est plus que suffisant pour pousser le bateau rapidement et en toute sécurité sur l'eau. Vous bénéficiez d'une assistance énergétique à bord grâce à un générateur Panda, qui remplace les batteries si vous ne souhaitez pas vous rendre au port pour recharger pendant une période plus longue. Nous sommes sûrs que vous vous sentirez à l'aise sur cette magnifique péniche et vous inviterons chaleureusement !

Lire la suite

Plan du bateau

Houseboat Woma DS13 Deluxe Plan du bateau
6 personnes
3 cabines
6 couchages
1 salle de bain

Équipements disponibles de la péniche

Paddle
Air conditionné
Propulseur d'étrave
Chauffage
GPS
Inverseur électrique
Générateur
Machine à café
Literie
Lave-vaisselle
Voir tous les équipements (+12)
Voir tous les équipements (+17)

Services fournis par Marc

Nettoyage final
Parking
Consommables
Ménage animaux
Taxe de séjour
Voir tous les services
Voir tous les services

Calendrier

Ajoutez vos dates pour voir le prix

Voir la grille tarifaire Voir les promotions
Effacer les dates

Proposé par Marc

Membre depuis juin 2023  ·  Propriétaire professionnel
Coordonnées validées
Temps de réponse : Dans la journée

Emplacement

Emplacement du péniche: Müritz Marina, Waren

Emplacement du péniche: Waren

Caractéristiques

Constructeur: Woma
Modèle: Ds13 Deluxe
Année: 2022
Longueur: 13.7m
Largeur: 4m
Capacité à bord: 6 personnes
Nombre de cabines: 3
Nombre de couchages: 6
Nombre de salles de bains: 1
Voir toutes les caractéristiques
Voir moins
Prix location
Frais de service et taxes
Promotion 

Conditions

Check-in et check-out

Horaire de check-in: 9:00 AM
Horaire de check-out: 6:00 PM

Les règles du bateau

Montant de la caution: 1 000 €
?
Carburant inclus dans le prix: Non
Permis bateau requis: Non
Âge minimum pour la location: 18 ans

Rétractation et politique d'annulation

Droit de rétractation pour cette réservation :
Politique d'annulation
Pour connaître les conditions d'annulation, ajoutez vos dates de navigation.

Vérifier la disponibilité des bateaux similaires

Fermer

Fermer
Grille tarifaire
01 January - 31 December
4 990 / semaine
1 semaine 4 990